Territoires
Territories
Programmes
Programmes
Diffusions
Disseminations
Durabilités
Sustainabilities
Habitat Housing
Bureau Office
Culture Culture
Education Education
Modus operandi
Operating mode
Institut de formation ergothérapie 1800m²
Commerce Retail
Recherche et Santé Research and health
Sport Sport
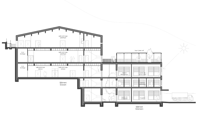
Réhabilitation-extension
du Centre de Rééducation Professionnelle

Repenser les parcours et tisser des liens entre les différents bâtiments composant le site. Développer une extension très fonctionnelle, placée au coeur du système, permettant de rééquilibrer l’ensemble de l’établissement. Réfléchir dans une logique d’optimisation foncière,préserver les droits à construire dans la zone rouge du PPRNP et maintenir le terrain libre dans la zone blanche, pour le futur. La compacité du plan de masse (avec démolition partielle et surélévation du bâtiment vert plutôt qu’une extension en partie haute du terrain) permet d’optimiser significativement les couts d’équipement (infrastructures et réseaux pour la distribution des données, des fluides, etc.).
L’architecture de l’extension se focalise ainsi sur l’expression de la trame structurelle, image de flexibilité et d’ouverture. Le remplissage de cette trame structurelle est principalement verrier, afin de maximiser les transparences, l’éclairement des locaux et l’ouverture sur le quartier. De vastes loggias disposées au Sud-Ouest protègent les façades de l’échauffement et offrent des prolongements extérieurs aux activités.

Parking
Parking
Collège pour 700 élèves 12000m²
Campus vertical Green-er 24000m²
Centre de Rééducation Professionnelle 4300m²
programme : Restructuration extension de l’établissement / surface : 4300 m² (SHON) /coût des travaux : 4,9 M€ / calendrier :études 2014 /maîtrise d'ouvrage : Saint-Etienne /maîtrise d'oeuvre : ateliermartel, atelier roberta, RFR éléments, Philippe Colas, AR-C