Territoires
Territories
Programmes
Programmes
Diffusions
Disseminations
Durabilités
Sustainabilities
Habitat Housing
Bureau Office
Culture Culture
Education Education
Modus operandi
Operating mode
Commerce Retail
Recherche et Santé Research and health
Sport Sport
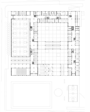
programme : 2 Salles de classe générales et techniques, gymnases, ... / surface : 12000 m² / coût de traveaux : 35 M / calendrier : concours 2013 / maîtrise d’ouvrage : CO_3 La Gruyère / maîtrise d’oeuvre : atelier martel ;Frederik Garrigues architecte ; atelier Roberta paysagistes
Claustrum Aperto, Collège pour 700 élèves

La règle constructive, intemporelle et universelle, comme vecteur pédagogique ; la grille urbaine, ouverte et dynamique, comme vecteur de citoyenneté : cet édifice est un établissement scolaire restant accessible comme équipement municipal en dehors des heures de classe. Un cloître ouvert. La volumétrie du bâtiment, volontairement basse, s’adresse à un territoire de plaine. Son unité et sa compacité s’adressent à sa fonction institutionnelle. Le désir exprimé dans ce projet a été de souligner et structurer un aménagement qui s’est fait au fil du temps,le long de la route d’accès à un antique temple gallo-romain.
Atteindre une expression intemporelle en utilisant des principes architecturaux considérés comme immuables, et ceci sans naïveté. Ou la conviction que des règles et des principes peuvent prétendre à l’universalité.


Parking
Parking
Collège pour 700 élèves 12000m²
Institut de formation ergothérapie 1800m²
Campus vertical Green-er 24000m²
Centre de Rééducation Professionnelle 4300m²