Territoires
Territories
Programmes
Programmes
Diffusions
Disseminations
Durabilités
Sustainabilities
Modus operandi
Operating mode
Habitat Housing
Commerce Retail
Bureau Office
Culture Culture
Recherche et Santé Research and health
Education Education
Sport Sport
Parking
Parking
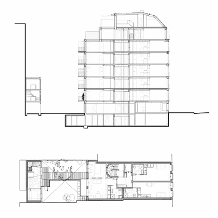
programme : 19 logements collectifs / surface : 1000 m² (SHON) / coût de travaux : n.c. / calendrier : études 2012/13 - chantier 2013/14 / maîtrise d’ouvrage : privée / maîtrise d’oeuvre : atelier martel ; aka agence kaiser architecte
19 logements collectifs BBC 1000m
35 logements intermédiaire 2500m²
21 logements collectifs BBC en bois 1320m²
Ensemble résidentiel et de loisir 2200m²
Maison à Marly 200m²
Restructuration maison de ville 186m²
Maison passive en île de France 250m²
Maison de vacance en corse 320m²
Gite rural 265m²
Reconversion d'un atelier 228m²
16 logements collectifs 1400m²
20 logements en accession sociale 1200m²
Habitat rural basse énergie 170m²
Résidence service, 26 logements 11400m²
Jeux de références et de signes croisant allusions haussmanniennes et bétons dernier cri, les subtiles décalages architecturaux dialoguent avec l’intervention facétieuse et réconfortante de l’artiste Julien Serve. Immeuble de 19 logements sur 8 niveaux, situé sur un grand axe haussmannien, l’avenue de Clichy, dans le 17eme arrondissement de Paris, le projet remplace une construction faubourienne d’un étage. Les logements sont majoritairement de petite taille (studios et T1), la souplesse du plan permettant ponctuellement de les associer pour réaliser des appartements de plus grande dimension, souvent traversant. Un logement en duplex couronne l’édifice, et une petite maison à deux étages vient se nicher en fond de parcelle.
120 logements collectifs 12000m²
250 logements collectifs 13650m²
Trois maisons 750m²