Territoires
Territories
Programmes
Programmes
Diffusions
Disseminations
Durabilités
Sustainabilities
Modus operandi
Operating mode
Habitat Housing
Commerce Retail
Bureau Office
Culture Culture
Recherche et Santé Research and health
Education Education
Sport Sport
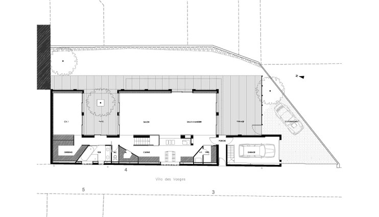
Reconversion d'un atelier 228m²
Reconversion d'un atelier de couvreur en habitation
programme : restructuration et extension d’un local d’activité en maison d’habitation / surface : 228 m² (SHON) / coût de travaux : 300 000 €HT / calendrier : études 2003/2004 - chantier 2005 / maîtrise d’ouvrage : privée / maîtrise d’oeuvre : atelier martel (Marc Chassin), Yvan Bourgeois ; BET Ecope bâtiment / photographies : Luc Boegly
Suite à l’achat de la friche d’un ancien bâtiment d’activité, le nouveau propriétaire découvre avec consternation les limites detransformation imposées par le POS. L’appel aux architectes est lancé comme un SOS.Les contraintes réglementaires imposaient la conservation des murs et interdisait de nouvelles prises de vue sur le jardin. Afin de dénouer le problème, une double intervention sur la masse construite est alors opérée : le creusement d’un patio et l’ajout d’un volume équivalent sur le toit.Le patio apporte de la lumière et des vues‘‘ réglementaires ‘‘aux espaces du rez-de-chaussée. L’extension permet de capter de la lumière ‘‘légales‘‘ au dessus de l’existant. Et un balcon écran permet d’éclairer la façade côté jardin sans déroger à la règle.
Parking
Parking
35 logements intermédiaire 2500m²
19 logements collectifs BBC 1000m²
21 logements collectifs BBC en bois 1320m²
Ensemble résidentiel et de loisir 2200m²
Maison à Marly 200m²
Restructuration maison de ville 186m²
Maison passive en île de France 250m²
Maison de vacance en corse 320m²
Gite rural 265m²
16 logements collectifs 1400m²
20 logements en accession sociale 1200m²
Habitat rural basse énergie 170m²
Résidence service, 26 logements 11400m²
250 logements collectifs 13650m²
120 logements collectifs 12000m²
Trois maisons 750m²