Territoires
Territories
Programmes
Programmes
Diffusions
Disseminations
Durabilités
Sustainabilities
Modus operandi
Operating mode
Habitat Housing
Commerce Retail
Bureau Office
Culture Culture
Recherche et Santé Research and health
Education Education
Sport Sport
Restructuration maison de ville 186m²
Parking
Parking
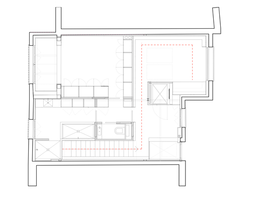
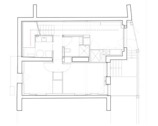
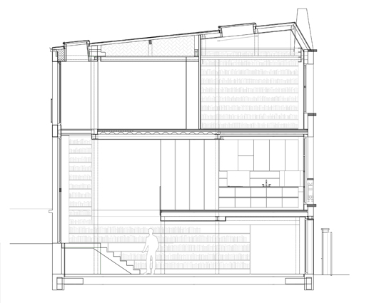
programme : restructuration d’une maison de ville / surface : 186 m² (SHON) / calendrier : études 2010 - chantier 2012 / maîtrise d’ouvrage : privée / maîtrise d’oeuvre : atelier martel
Restructuration d'une maison de ville
Les 44 maisons accolées de la rue Dieulafoy, dans le quartier de la Maison Blanche (13ème Arrt), ont été construites en 1921 par l’architecte Henry Trésal. Elles illustrent un cas assez rare pour l’époque, d’une promotion immobilière privée d’habitat intermédiaire à destination de la classe moyenne. Au cours du XXème siècle, la plupart des pavillons ont fait l’objet de modifications qui ont contribué à les individualiser. Le projet de rénovation consiste à restituer les caractéristiques morphologiques initiales de la façade, tout en insufflant un esprit contemporain radical. Des pans de verre sérigraphié blanc, faisant écho à la matière et à la couleur du mur maçonné originel, laissent désormais la lumière pénétrer généreusement l’intérieur. Celui-ci est totalement restructuré suivant un parcours en spirale qui lie les trois niveaux, et dont une bibliothèque de 10 000 ouvrages constitue le fil d’Ariane.
35 logements intermédiaire 2500m²
19 logements collectifs BBC 1000m²
21 logements collectifs BBC en bois 1320m²
Ensemble résidentiel et de loisir 2200m²
Maison à Marly 200m²
Maison passive en île de France 250m²
Maison de vacance en corse 320m²
Gite rural 265m²
Reconversion d'un atelier 228m²
16 logements collectifs 1400m²
20 logements en accession sociale 1200m²
Habitat rural basse énergie 170m²
Résidence service, 26 logements 11400m²
250 logements collectifs 13650m²
120 logements collectifs 12000m²
Trois maisons 750m²